Trilocale in vendita

Caserta, Via neroni - Caserta Sud
€ 195.000
3 locali 3 locali
120 Mq 120 Mq
2 bagni 2 bagni

Trilocale in vendita

Caserta, Via neroni - Caserta Sud

Descrizione annuncio

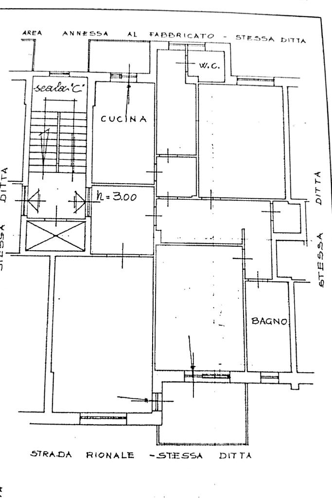
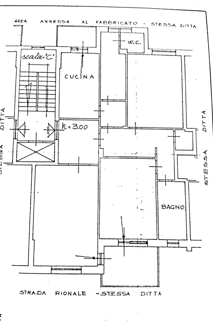
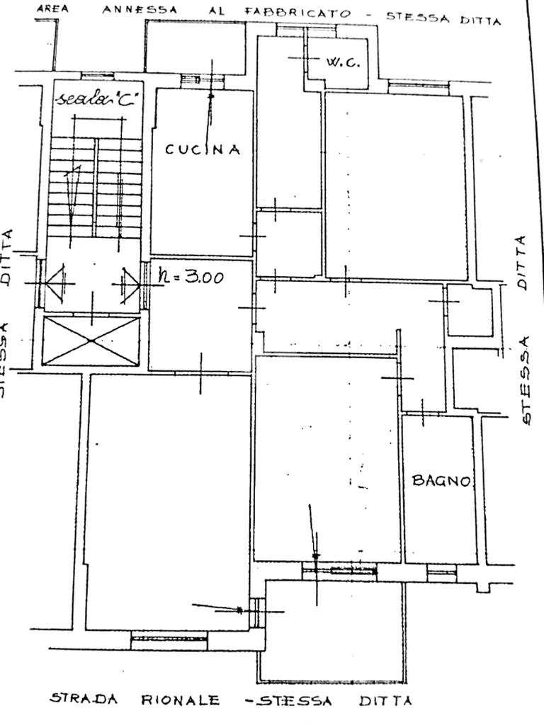
Nel cuore di Caserta centro Sud, nella rinomata zona Ferrarecce, è disponibile un appartamento in vendita che offre comfort e funzionalità. Situato al piano medio di un edificio dotato di ascensore, l'immobile si estende su una superficie di 120 mq commerciali. L'ingresso ampio conduce a un soggiorno luminoso e a una cucina separata, ideale per chi ama cucinare. La proprietà include due camere da letto, un piccolo studiolo con servizio, e un ulteriore bagno. Un ripostiglio pratico e due balconi con doppio affaccio completano gli spazi interni. Al sesto piano, una soffitta offre ulteriore spazio di archiviazione. La proprietà include anche un posto auto in garage e una quota dell'immobile del portiere, assicurando comodità e sicurezza. Perfetto per chi cerca una soluzione abitativa funzionale in una zona ben servita.

Mostra tutto

Nelle vicinanze

Trasporto pubblico Trasporto pubblico
stazione di Caserta
stazione di Caserta
590 m
Caserta
Caserta
690 m
Fermata CLP Stadio
Fermata CLP Stadio
960 m
Recale
Recale
2,8 Km
Ricariche auto elettriche Ricariche auto elettriche
Caserta Acquaviva | EnelX
360 m
Stazione di Caserta | Enelx
540 m
Caserta Ferrarecce | EnelX
710 m
Caserta Laviano | EnelX
1,0 Km
Sede Enel Caserta | EnelX
1,2 Km
Scuole Scuole
Scuola media A. Ruggiero
200 m
Scuole
210 m
Università degli Studi della Campania "Luigi Vanvitelli"
400 m
Scuola Papa Giovanni XXIII
510 m
Liceo Scientifico Armando Diaz
830 m
Farmacia Farmacia
Farmacia
240 m
Farmacia Odierna
530 m
Farmacia Fugaro
670 m
Barca
2,4 Km
Farmacia San Michele
2,5 Km
Ospedali Ospedali
ASL Caserta Palazzo della salute
1,5 Km
Clinica Villa del Sole
1,6 Km
Ospedali
2,0 Km
Pronto Soccorso Ospedale "Sant'Anna e San Sebastiano"
2,0 Km
Nuovo Policlinico
2,1 Km
Supermercati Supermercati
Deco
70 m
Supermercati
200 m
EuroSpin Caserta
1,2 Km
Famila
1,3 Km
Supermercato "MD"
1,7 Km
Negozi Negozi
Negozi
310 m
Il forno
320 m
Panificio Fusco
490 m
NewHope Store
680 m
I'M boutique Donna
730 m
Bar Bar
Bar
60 m
Tris bar
230 m
Bar Galaxy
510 m
Caffetteria Vanvitelli
560 m
Gran Caffè Margherita
570 m
Ristoranti Ristoranti
Ristoranti
160 m
Dolci&Fornelli Mungiguerra
250 m
Le tre farine
390 m
Prezzemolo
430 m
La loggetta
780 m
Mostra tutto

Caratteristiche

Rif.:
61156779
Piano:
2 di 6 con ascensore (Piano medio)
Posti auto:
1
Balconi:
2
Camere da letto:
2
Arredamento:
Assente
Mostra tutto
Prezzo Prezzo
€ 195.000
Rata mutuo Rata mutuo
€ 920 / mese
Spese annue Spese annue
€ 1
Proponi il tuo prezzoProponi il tuo prezzo

Classe Energetica

G
G
G
G
G
G
G
G
G
EP globale non rinnovabile:
350.00 kW h/m² anno
EP globale rinnovabile:
350.00 kW h/m² anno
EP invernale del fabbricato:
EP estiva del fabbricato:
Anno di costruzione:
1967
Riscaldamento:
Autonomo
Tipo impianto:
A radiatori
Tipo alimentazione:
Metano

Ti interessa visionare l'immobile?

Fissa un appuntamento  Fissa un appuntamento

Richiedi informazioni

Clicca su Leggi per aprire l'informativa
* Questi campi sono obbligatori

Calcola il tuo mutuo

Semplice e senza impegno
Anticipo

( % )
Mutuo

( % )

pochi semplici passi

inserisci i tuoi dati
Questionario completato
Grazie per aver richiesto un appuntamento senza impegno con un nostro Consulente del Credito e Assicurativo.

Hai inserito correttamente tutti i dati necessari e a breve riceverai una e-mail con un link da convalidare per inviare i tuoi dati.
Affiliato
Studio Lincoln Srl
Viale Lincoln, 120 81100 Caserta (CE)

Il nostro staff


  • Luciano Terracciano
    Affiliato

  • Enrico Palumbo
    Responsabile
Viale Lincoln, 120 81100 Caserta (CE)
Zona: Caserta Centro Sud
Mostra su mappa
Orari: dal lunedì al venerdì 09:00/13:00 - 15:30/20:00; sabato chiusura alle 19:00; domenica su appuntamento.
Affiliato
Studio Lincoln Srl
Viale Lincoln, 120 81100 Caserta (CE)

2025 Tecnocasa Franchising S.p.A. - P. IVA 08365160152 - Via Monte Bianco 60/A 20089 Rozzano (MI). Ogni agenzia ha un proprio titolare ed è autonoma. Privacy policy | Policy utilizzo | Cookie policy