Palazzina in vendita

Caiazzo, Via Santa Cristina
€ 240.000
14 locali 14 locali
415 Mq 415 Mq
6 bagni 6 bagni

Palazzina in vendita

Caiazzo, Via Santa Cristina

Descrizione annuncio

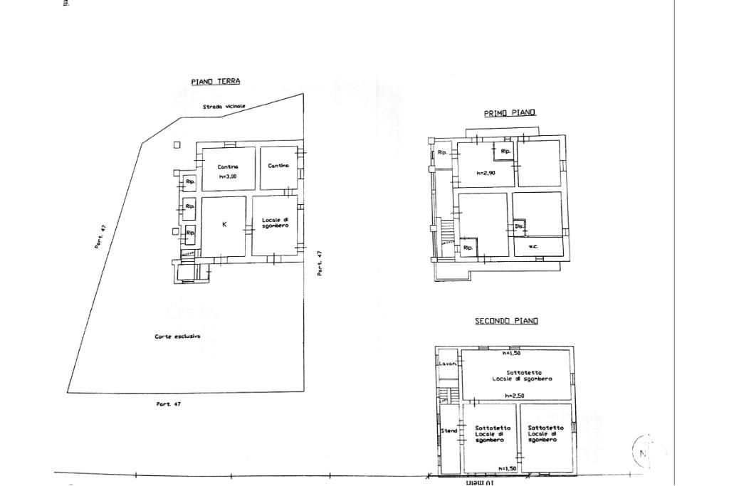
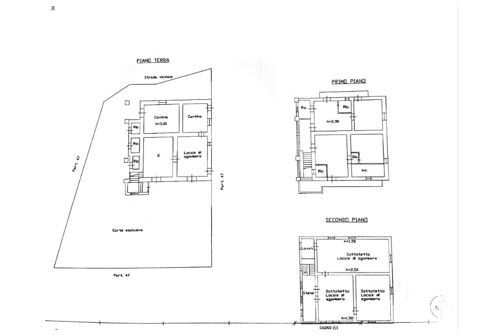
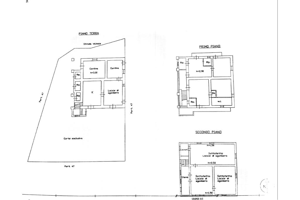
Nel comune di Caiazzo, proponiamo in vendita una palazzina di 415 mq, che si sviluppa su più livelli. L'immobile è composto da 14 locali, tra cui 10 camere da letto e 6 bagni, offrendo ampi spazi per diverse esigenze abitative. Al piano terra si trovano un appartamento e un monolocale, mentre al primo piano sono presenti due appartamenti. Completano la proprietà due mansarde, attualmente locate per un totale di 1.050,00 euro al mese, garantendo un interessante reddito da locazione. All'esterno, un'area di 450 mq offre spazio aggiuntivo per attività all'aperto o per il relax. Questa proprietà rappresenta un'opportunità versatile, ideale sia per chi cerca una residenza spaziosa sia per chi desidera un investimento immobiliare con rendita garantita.

Mostra tutto

Nelle vicinanze

Scuole Scuole
Scuole
1,4 Km
Farmacia Farmacia
Farmacia
1,4 Km
Bar Bar
Bar
1,1 Km
Ristoranti Ristoranti
tenuta San Bartolomeo
1,3 Km
Le Saudine
2,3 Km
Selvanova
2,4 Km
Ristoranti
2,5 Km
Mostra tutto

Caratteristiche

Rif.:
61151711
Piano:
3 di 3 (Piano su più livelli)
Camere da letto:
10
Arredamento:
Assente
Condizionamento:
Autonomo
Ascensore:
No
Mostra tutto
Prezzo Prezzo
€ 240.000
Rata mutuo Rata mutuo
€ 1.131 / mese
Spese annue Spese annue
€ 1
Proponi il tuo prezzoProponi il tuo prezzo

Classe Energetica

G
G
G
G
G
G
G
G
G
EP globale non rinnovabile:
350.00 kW h/m² anno
EP globale rinnovabile:
350.00 kW h/m² anno
EP invernale del fabbricato:
EP estiva del fabbricato:
Anno di costruzione:
2000
Riscaldamento:
Autonomo
Tipo impianto:
A radiatori
Tipo alimentazione:
Metano

Ti interessa visionare l'immobile?

Fissa un appuntamento  Fissa un appuntamento

Richiedi informazioni

Clicca su Leggi per aprire l'informativa
* Questi campi sono obbligatori

Calcola il tuo mutuo

Semplice e senza impegno
Anticipo

( % )
Mutuo

( % )

pochi semplici passi

inserisci i tuoi dati
Questionario completato
Grazie per aver richiesto un appuntamento senza impegno con un nostro Consulente del Credito e Assicurativo.

Hai inserito correttamente tutti i dati necessari e a breve riceverai una e-mail con un link da convalidare per inviare i tuoi dati.
Affiliato
Studio Lincoln Srl
Viale Lincoln, 120 81100 Caserta (CE)

Il nostro staff


  • Luciano Terracciano
    Affiliato

  • Enrico Palumbo
    Responsabile
Viale Lincoln, 120 81100 Caserta (CE)
Zona: Caserta Centro Sud
Mostra su mappa
Orari: dal lunedì al venerdì 09:00/13:00 - 15:30/20:00; sabato chiusura alle 19:00; domenica su appuntamento.
Affiliato
Studio Lincoln Srl
Viale Lincoln, 120 81100 Caserta (CE)

2026 Tecnocasa Franchising S.p.A. - P. IVA 08365160152 - Via Monte Bianco 60/A 20089 Rozzano (MI). Ogni agenzia ha un proprio titolare ed è autonoma. Privacy policy | Policy utilizzo | Cookie policy